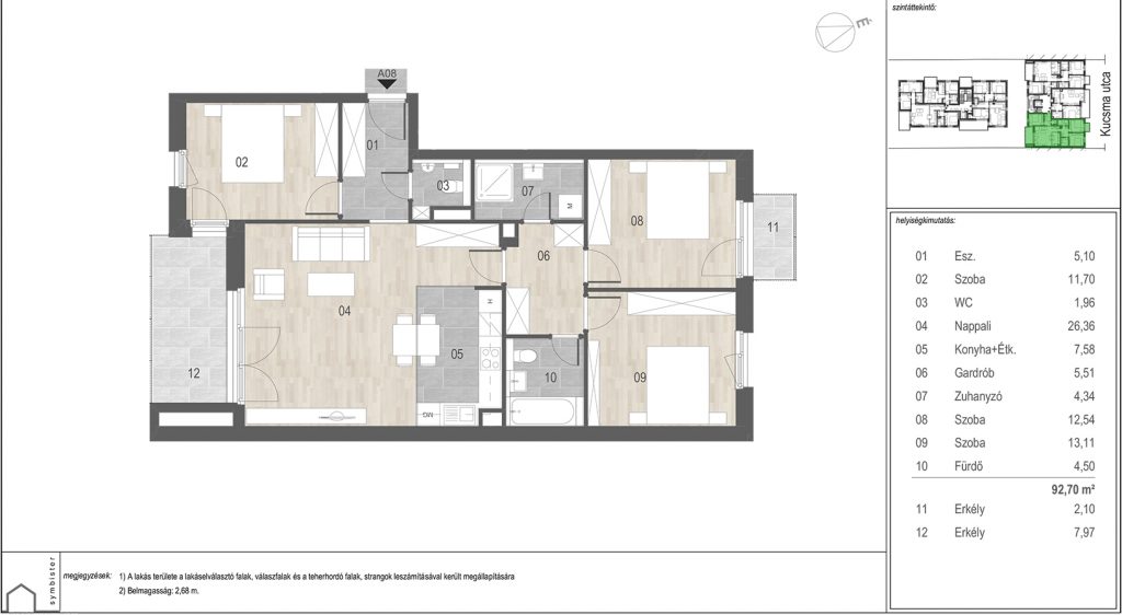
Kucsma 7-9 - II. emelet A08
Ár:
Eladva
Lakás mérete
93 m2
Emelet
II. emelet
Szobák száma
4 szoba
Erkély mérete
10 m2
Tájolás
Helyiség
Alapterület (m2)
| Előtér | 5,10 |
| Szoba | 11,70 |
| WC | 1,97 |
| Nappali | 26,38 |
| Konyha | 7,37 |
| Gardrób | 5,51 |
| Zuhanyzó | 4,34 |
| Szoba | 12,92 |
| Szoba | 12,73 |
| Fürdő | 4,50 |
| Nettó alapterület | 92,52 |
| Terasz | 2,10 |
| Terasz | 8,08 |



